Обяви За нас Контакти
Продава ПАРЦЕЛ
град София, Манастирски ливади
ул. Околовръстен път
1 400 000 €
2 738 162.00 лв.

(1 518 €, 2 968.95 лв./m2)
Цената е без ДДС
История на цената
Коригирана в 14:25 на 19 януари, 2026 год.
Обявата е посетена 3682 пъти.
Площ:
922 m2
Регулация:
ДА

Описание на имота:


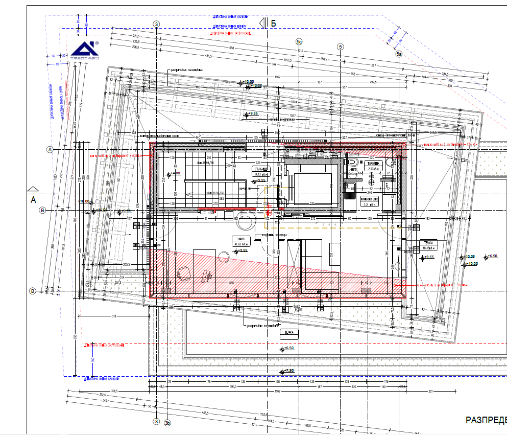
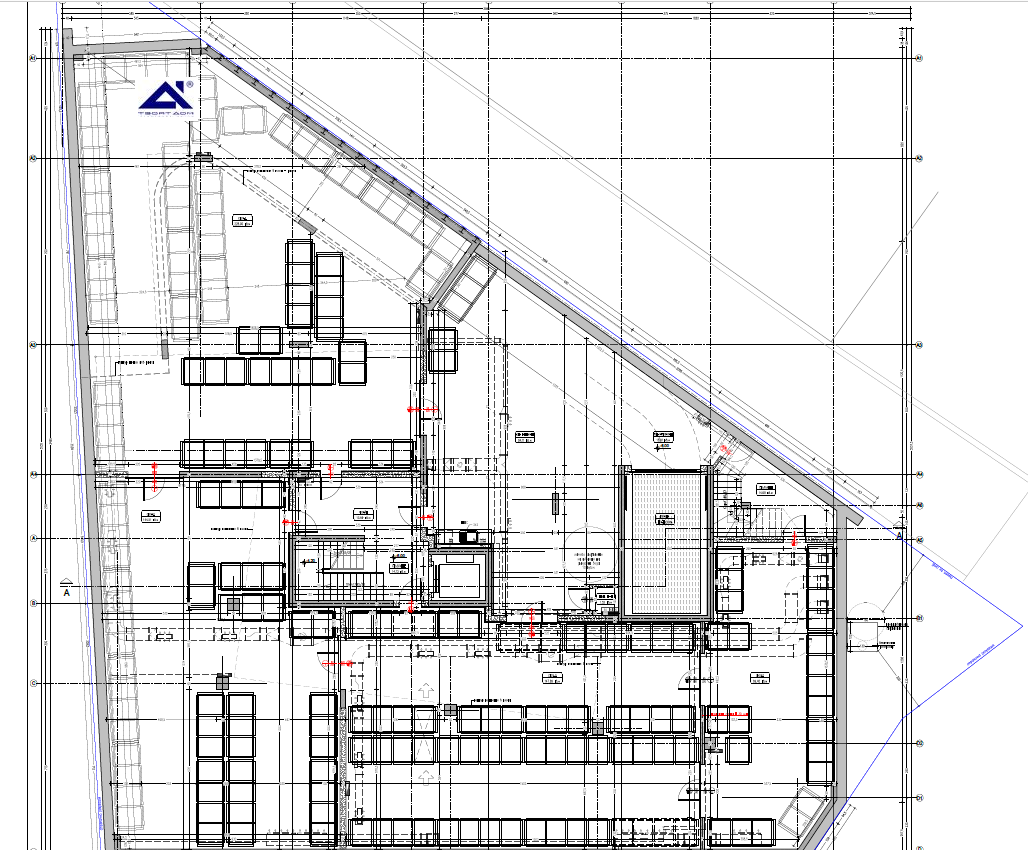
Агенция за недвижими имоти Твоят Дом, продава УПИ с лице на Околовръстен път, с изготвен проект за четириетажна офис сграда и с разрешение за строеж. Имтотът е с готови документи за откриване на строителна площадка.
Сградата е РЗП 734 кв.м., и РЗП със сутерен 1915 кв.м.
Площите по нива са следните:
Кота 6,00 862,91 кв.м
Кота 3,00 201,71 кв.м.
Кота 0,00 179,89 кв.м
Кота + 3,25 211,84 кв.м
Кота + 6,50 210,90 кв.м
Кота +9,55 210,90 кв.м.
Предвидени са 7 надземни паркоместа и рампа към товарна платформа към сутерена.
Посочената продажна цена е без включен ДДС.
S0130621
Агенция за недвижими имоти Твоят Дом, работи по изискванията на стандарт БДС EN 15733.

Особености
Виза
За контакт:
0884783475
Брокер:
Дарина Петкова
088 4783475, 0700 70 188
Още оферти от брокера: Продава | Дава под наем | Купува | Наема
Агенция:
ТВОЯТ ДОМ
0700 70 188
ТВОЯТ ДОМ logo
Медал за прослужено време
В imot.bg от 2006 г.
yourhome.imot.bg
Адрес:
област София, гр. София, гр. София, пл. П. Р. Славейков 7, вх. В
http://www.yourhome.bg
ИЗПРАТИ ЗАПИТВАНЕ
ИЗПРАТИ ЗАПИТВАНЕТО

Продава ПАРЦЕЛ
град София, Манастирски ливади
ул. Околовръстен път
Обява: 1r167396541090014

1 400 000 €
2 738 162.00 лв.
История на цената
(1 518 €, 2 968.95 лв./m2)

Цената е без ДДС
ЗАПАЗИ ОБЯВАТА

Местоположение: град София, Манастирски ливади, ул. Околовръстен път

Допълнителни данни за имотите в района и сравнение с други райони

Покажи

Период

и 2 месеца

* Средните цени са определени чрез медианна стойност